逗子
Zushi
- 逗子
- 新築戸建
逗子市久木9丁目 新築4棟戸建
~2025年11月土・日・祝11時~16時現地販売会開催~
価格改定しました!お求めやすい価格で今がチャンス!
◇JR横須賀線逗子駅より平坦徒歩17分の好立地☆
◇エコなオール電化物件☆
◇家事動線を考えられた使いやすい間取り☆
詳細はお電話もしくは11月の土日祝でしたら現地おりますので是非お立ち寄り下さいませ!
DATA詳細情報
| 価格 | 3,990万円 ~ 3,990万円 | ||
|---|---|---|---|
| 所在地 | 逗子市久木9丁目3-20付近 | ||
| 交通 | JR横須賀線「逗子」駅徒歩17分 | ||
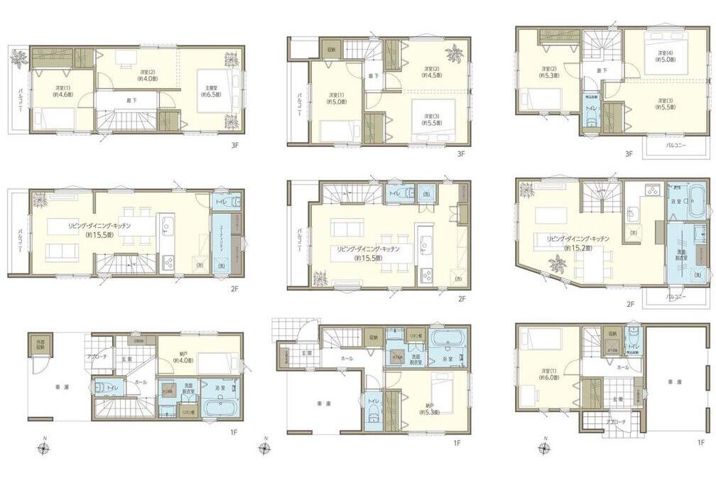
| 築年月 | 2025年2月 | 間取り | 2SLDK~3LDK |
| 土地面積 | 58.02㎡~58.03㎡ | 建物面積 | 96.04㎡~106.40㎡ |
| 建蔽率 | 60% | 容積率 | 200% |
| 地勢 | 平坦 | 駐車場 | 有 |
| 土地権利 | 所有権 | 地目 | 宅地 |
| 現況 | 空室 | 用途地域 | 第1種住居地域 |
| 都市計画 | 市街化区域 | 設備 | 公営水道・公共下水・東京電力 |
| 接道状況 | 西側公道約10m~12mに接道 | 引渡 | 相談 |
| 構造 | 木造3階建 | 取引態様 | 媒介 |
| 管理費 | 修繕積立金 | ||
| バルコニー面積 | 総戸数 | ||
| 所在階 | 内装リフォーム | ||
| その他法令上の制限 | |||
| 掲載開始日 | 2025/10/25 | 広告有効期限 | |
| 備考 | |||
CONTACTお問い合わせ
こちらの物件へのお問い合わせやご相談がございましたら、お電話あるいはメールフォームよりお問い合わせください。
電話でのお問い合わせ
- 046-876-8809
- 【受付時間】9:00-18:00 【定休日】水曜日


















